214 CARROLL Street
214 CARROLL Street
SEE ALL PHOTOS
214 CARROLL Street
214 CARROLL Street
Sold

214 CARROLL Street

214 CARROLL Street, Brooklyn, NY 11231

$3,750,000

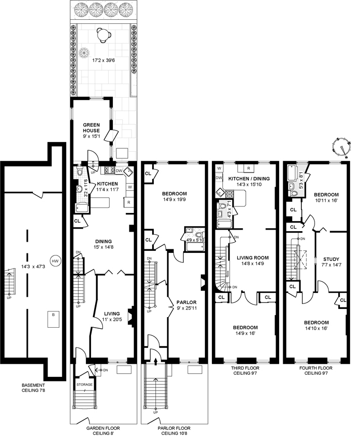
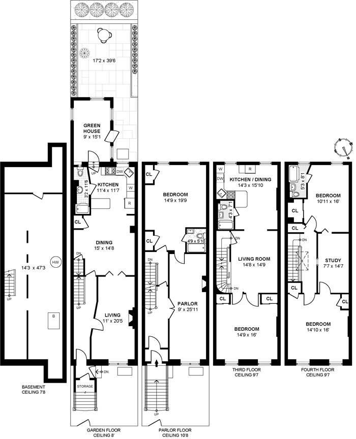
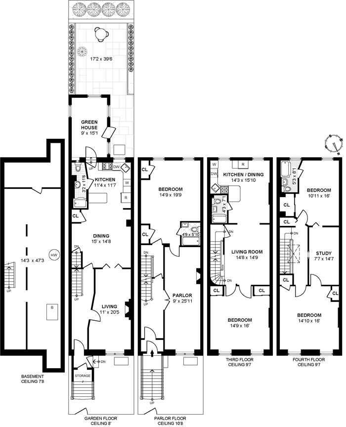
214 Carroll Street Nestled on a quiet, tree lined street close to Carroll Park, this 5 level home presents a buyer with the rare opportunity to purchase a piece of history on an iconic block in prime Carroll Gardens. Built in 1899, this 2 unit home is being delivered vacant and ready for a single unit townhouse combination which will include, garden and parlor floors plus two bedroom level floors, a backyard with a fig tree, and a fully built out basement that can be used as cold storage, wine cellar, storage or even a workshop. Also of note are the low, low property taxes ($590) an amazing feature of the home that you'll be sure to appreciate month after month after month. If you're coming from a condo this is a savings of $2,000-$3,000 monthly for a similarly sized property. The home spans 17' wide and features a smart configuration that maximizes livable space with a turn of the century staircase and banister tucked against the eastern wall allowing for generous 15' x 16' bedrooms and open north to south site lines allowing for maximum light throughout the day. The home features hardwood floors throughout, a gas boiler & oven, and if a purchaser should choose, the opportunity to restore 4 wood burning fireplaces throughout the home as well. The 3,401 sf home includes a small extension off the 1st floor kitchen to the rear yard that may be kept or removed. The addition was done legally. Carrol street between Court and Clinton has the feel of another era, with rows of brownstones lining both sides of the street and neighborhood conveniences like a coffee shop and Chase bank just down the block on the corner. World class pizza parlors and one of a kind restaurants are also within waking distance and the F line subway stop 2 blocks away will get you to the West Village or SoHo in less than a half an hour. The street also enjoys limited to no through traffic and the sound of kids playing and piano lessons through open windows can be heard in the spring and summer months. Bring your imagination, your GC and your architect if desired to see this truly charming home and opportunity.

5
beds

10
baths

3,401 Sq.Ft. LIVING AREA

1,700 Sq.Ft. lot

Rick Kelly

Rick Kelly

Features & Amenities

Interior

  • total bedrooms5
  • Total bathrooms10
  • full bathrooms10
  • Laundry room Washer Hookup, In Unit
  • APPLIANCES Washer Dryer Allowed
  • other interior Features Smoke Free

Area & Lot

  • Status Sold
  • Living Area3,401 Sq.Ft.
  • Total Area3,401 Sq.Ft.
  • Lot Area1,700 Sq.Ft.
  • MLS® IDRLS11009689
  • TypeResidential
  • YEAR BUILT1899
  • NeighborhoodCarroll Gardens
  • View DescriptionOther

Exterior

  • STORIES3
  • AIR CONDITIONINGOther

Financial

  • Sales Price$3,750,000
  • Real Estate Tax $7,080/yr

Carroll Gardens

Carroll Gardens is known for its historic brownstones, lush gardens, and vibrant local culture. With its strong community vibe, excellent dining options, and easy access to nearby parks, it’s a charming and welcoming neighborhood.

Explore

Work With Us

Call us today to schedule a consultation to sell or a private showing.

Follow Rick on Instagram